Se vuoi realizzare il tuo sogno, con noi puoi
Toggle navigation
Home
Immobili
Vendite
Affitti
Immobili commerciali
Terreni
Chi siamo
Servizi
Contatti
Compatta pannello di ricerca immobili
Espandi pannello di ricerca immobili
Tipologia
Vendite
Affitti
Immobili commerciali
Terreni
Categoria
Qualsiasi
1 locale
2 locali
3 locali
4 o più locali
Appartamento
Attico
Azienda agricola
Baita
Cantina
Capannone
Casa singola
Castello
Duplex
Garage
Hotel
Laboratorio
Loft
Magazzino
Maisonette
Mansarda
Negozio
Porzione di casa
Porzione di villa
Posto auto
Posto barca
Rustico / Casale
Stabile / Palazzo
Tenuta
Terreno
Terreno agricolo
Terreno edificabile
Ufficio
Villa
Villa bifamiliare
Villetta a schiera
Città
Tutte
Cambiano (TO)
Moncalieri (TO)
Pecetto Torinese (TO)
Poirino (TO)
Zona
Tutte
Prezzo (da - a)
Mq (da - a)
Codice
Ordinamento
Inserimento
Codice
Categoria
Città
Zona
Prezzo
Metri quadri
Cerca
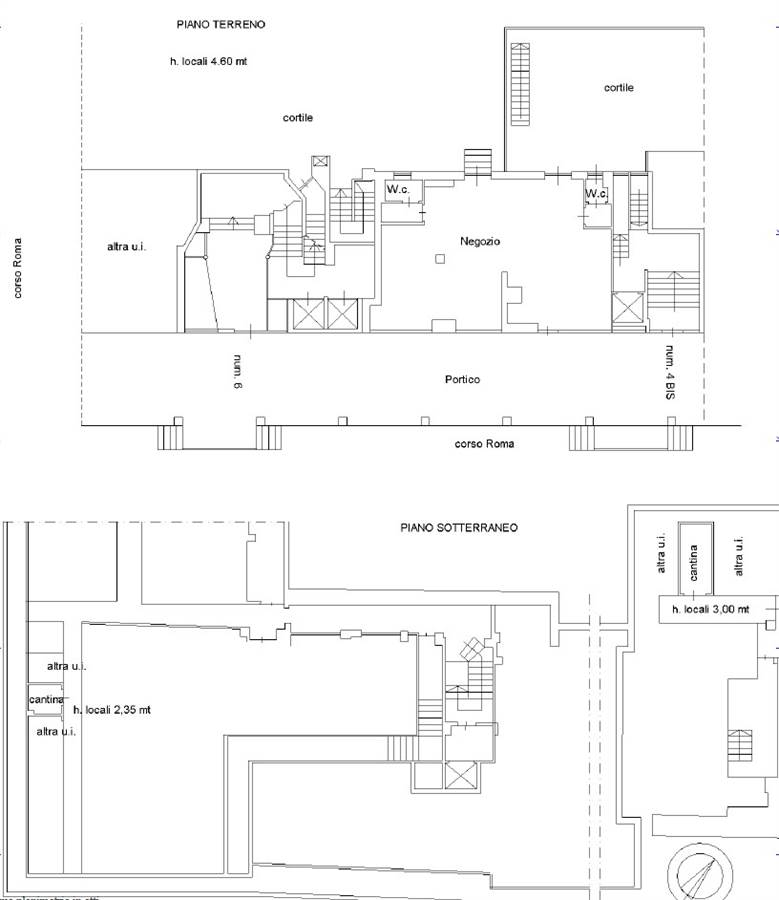
NEGOZIO CON TRE VETRINE
92.000 €
90 m
2
1 Bagni
Previous
Next
Foto
Planimetrie
Codice
V000168
Città
Moncalieri
(San Pietro)
Categoria
Negozio
Spese condominiali
1.650 € / anno
Locali
1
Piano
Terra
Classe energetica
Non classificabile
Stato Immobile
Buono
Grado
Medio
Orientamento
Sud
Lati Liberi
1
Arredi
Possibilità
Riscaldamento
No
Acqua Calda
Centralizzata
Infissi
Metallo Doppio Vetro
Serramenti
Buono
Persiana
Tapparella Metallo
Pavim. Bagno
Ceramica
Pavimento
Marmo
Numero Vetrine
Tre
Accesso Disabili
Nessuna Barriera
Accesso interno disabili
Pieno accesso
Accessori
Antifurto, Cassaforte, Doppi Vetri, Porta Blindata, Ripostiglio
**Locale in Vendita nel Cuore di Borgo San Pietro**
Scopri questa opportunità unica di investimento situata nel cuore pulsante di Borgo San Pietro. Questo locale in vendita è perfetto per diverse tipologie di attività. Con tre ampie vetrine che garantiscono una visibilità eccezionale, il tuo business avrà la visibilità che merita.
L'accesso tramite porticato offre un ingresso accogliente, mentre l'interno è completo di un bagno e un ripostiglio, rendendo questo spazio funzionale e pratico. Inoltre, due cantine al piano interrato offrono ulteriore spazio per stoccaggio o archiviazione. La sicurezza è garantita grazie all'impianto di antifurto e alla presenza di una cassaforte.
Situato al piano terra, questo locale è facilmente accessibile e pronto per essere personalizzato secondo le tue esigenze. Non perdere l'occasione di investire in una posizione strategica e in un ambiente dinamico. Contattaci per ulteriori informazioni e per organizzare una visita!
Le presenti informazioni non costituiscono elemento contrattuale.
- Hai un immobile di PROPRIETA' e non sai com'è meglio procedere? CONTATTACI allo 011.6472098, Ti forniremo una VALUTAZIONE gratuita e insieme troveremo la migliore SOLUZIONE -
Documenti
PLN_corso_Roma.pdf (37 kb)
Mappa
corso Roma 4, Moncalieri (TO)
Condividi
Tweet
Mantieni impostazioni di default X
Uso dei cookies
Questo sito fa uso di cookies. I nostri cookies (propri) e quelli dei nostri Partners (cookies di terzi) servono per poterti offrire un'esperienza unica con noi. Per questo motivo, insieme ai nostri partners, raccogliamo e processiamo informazioni non sensibili (come l'identificatore del tuo dispositivo o le pagine che visiti).
In qualsiasi momento potrai eliminare, modificare o verificare le informazioni che condividi in
Cookie preference
o nella nostra
Cookie Policy
e
Privacy Policy
.
Necessari
Funzionali
Profilazione
Analitici
Accetta tutti
Rifiuta tutti
Accetta selezionati
Cookie preference