Italiano
Se vuoi realizzare il tuo sogno, con noi puoi

TRILOCALE RISTRUTTURATO CON GIARDINO e CLASSE ENERGETICA OTTIMA

160.000 €
80 m2
1 Camere
1 Bagni
Codice
V000169
Città
Moncalieri (Testona)
Categoria
Appartamento
Spese condominiali
375 € / anno
Locali
3
Box
1
Mq Box
13
Posti auto
1
Mq Giardino
50
Piano
Terra
Classe energetica
B
78,12 kWh/m²a
Stato Immobile
Ristrutturato
Grado
Medio
Posizione
Centro
Orientamento
Nord Ovest Sud
Lati Liberi
3
Giardino
Privato
Tipo Soggiorno
Soggiorno
Tipo Cucina
Semi Abitabile
Riscaldamento
Conta Calorie
Tipo Riscaldam.
Caldaia a Condensazione
Tipo Impianto
Radiatori
Fonte Energetica
Metano
Acqua Calda
Autonoma
Raffrescamento
Split
Infissi
PVC Triplo Vetro
Serramenti
Nuovo
Persiana
Tapparella Metallo
Pavim. Giorno
Gres Porcellanato
Pavim. Notte
Gres Porcellanato
Pavim. Bagno
Gres Porcellanato
Accesso Disabili
Nessuna Barriera
Accesso interno disabili
Pieno accesso
Isolamento
Presente
Isolamento termico
Cappotto esterno
Spessore cappotto (cm)
14
Accessori
Aria Condizionata, Fibra Ottica, Impianto Fotovoltaico, Porta Blindata, Ripostiglio, Tapparelle Elettriche, Tripli Vetri
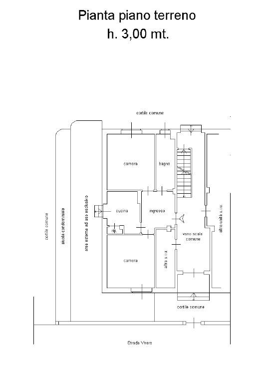
Situata in posizione strategica comodo all'imbocco della tangenziale, alle fermate dei bus, alle scuole e a tutti i vari servizi che offre la borgata di Testona, proponiamo la vendita di luminoso trilocale competo di box. L'appartamento, offre un ambiente accogliente e moderno, perfetto per chi cerca comfort e praticità ed è posizionato al piano terra di palazzina composta di sole 6 unità abitative e recentemente ristrutturata completamente. Lavori da evidenziare sono l'installazione dell'impianto fotovoltaico con batterie di accumulo per fornitura utenze parti comuni e una colonnina per ricarica veicoli elettrici ad ogni appartamento, il rifacimento del tetto e l'isolamento dell'intero stabile.
L'accesso all'appartamento avviene mediante porta blindata coibentata e anche le porte interne sono state sostituite; lo stesso vale per i portoncini condominiali. Vi è un cucinotto che tramite la porta finestra conduce all'area esterna privata, godibile nelle varie stagioni essendo pavimentata, punto di forza di questa proposta. Le due camere sono ampie, finestrate e con pavimenti chiari. Il bagno, anch'esso finestrato, è completo di vasca. C'è anche un pratico ripostiglio.
Gli infissi sono nuovi in PVC con triplo vetro e sono completi di tapparelle elettriche e di inferriate. Il riscaldamento, fornito da caldaia a condensazione ad alta potenza, è centralizzato con termovalvole e contabilizzatori di consumo. Presente anche impianto di condizionamento, elemento che migliora il confort abitativo.
Al piano strada nell'interno cortile vi è un basso fabbricato dove si trova il box auto. Vi è inoltre la possibilità di parcheggiare una seconda auto all'interno del cortile.
Le presenti informazioni non costituiscono elemento contrattuale.
- Hai un immobile di PROPRIETA' e non sai com'è meglio procedere? CONTATTACI allo 011.6472098, Ti forniremo una VALUTAZIONE gratuita e insieme troveremo la migliore SOLUZIONE -

Video

Mappa

strada Vivero 15/5, Moncalieri (TO)

Condividi

Cookie preference